間取り
4LDK+WIC
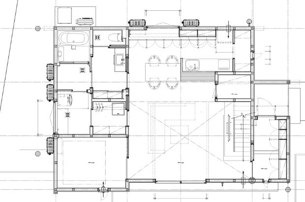
1階間取り
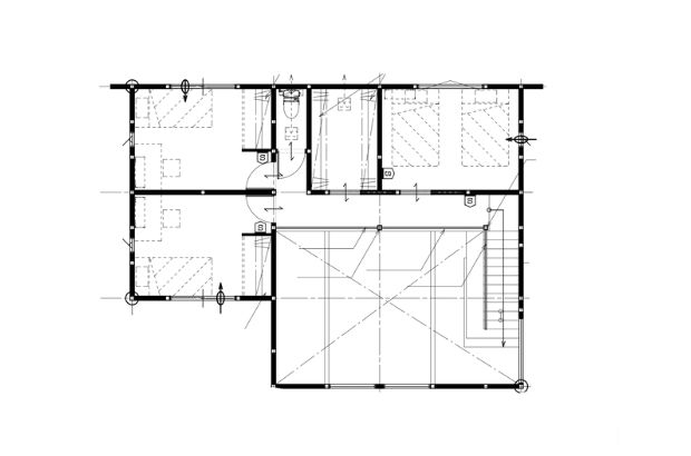
2階間取り
ギャラリー
外観
落ち着いた趣のある外観。斜めの屋根が二つ並んでいて1階部分は外壁が木でぬくもりのある見た目に。お庭に木を植えて緑がたくさん感じることができます
玄関
玄関収納がなんと左の壁一面に! 靴やおもちゃや傘も収納できますよ!
リビング
リビングは天井が高く広いつくりに。外光もたっぷり入るので、気持ちの良い空間になりました。 リビングの奥はトレーニングルームにするご予定の部屋が隣接しています。
ダイニングキッチン
ダイニングキッチンからは天井が木材になり、ぐっと雰囲気が変わります。
キッチン
キッチン背面のカウンターは大工さんの造作。木の色、風合いは同じ大工さんがすべて作ってくれているので、家の中の造作家具は統一感が生まれます。 既製品ではだせないサイズ感など、造作ならではです。
洗面・脱衣所
洗面台は左官職人が仕上げた技術!奥には収納棚があり、洗面・脱衣室としては広くてスッキリとした印象に
収納スペース
リビングとキッチンの間にひっそりなんだけど、ガッツリな収納スペースがあります。 ご家族の生活雑貨や、お子様のアイテムなど、リビングにだしっぱにしたくないけどスグ必要になるものなど、使用頻度が高いものを収納するのにはちょうどいい場所にあるスペースです
階段
階段の1段目を広くとって、そのまま階段下をテレビボードに設計してしまうという、設計士!斬新かつ実用的で、今までに見たことのないデザインです!テレビのしたにはデッキやゲーム機も置けるスペースをしっかり考え、配線も考えた穴もありますよ!
2階廊下
どこかのお店かな?と勘違いするほどの贅沢な景色です。窓が多く感じますが、視線は感じない配置に。
異素材の組み合わせ
異素材の組み合わせも建築昌英なら、木の薄さ細さに自信があります。組わせる技術もさることながら、ラインの美しさや、木の薄さなどにこだわります。
玄関と玄関外の階段は洗い出し仕上げ
洗い出し(細かい石をセメントなどのコンクリートで固めた床)の雰囲気が外構のお庭と外観にマッチして和モダンに!
トイレ
シンプルで落ち着ける空間に。
お施主様の声
トレーニングルーム
内見会の際はマシーンなど重いものや床を傷つけてしまいそうなものを展示できなかったのですが、のちのちに素敵なトレーニングルームに変身するこちらのお部屋! いつかお邪魔してみたいです☆
スタッフボイス
玄関ポーチ
洗い出しの床(コンクリートに砂利を入れたもの)と外構のお庭のテイストとマッチしていてとっても素敵な雰囲気でした。 屋内も住みやすさと居心地を両立した空間に仕上がりました! 今後ともどうぞよろしくお願いします!
物件情報
構造
2階建て
間取り
4LDK+WIC
延床面積
39.45坪
敷地面積
108.18坪
工法
木造軸組
施工期間
約半年
