間取り
4LDK+MOAルーム
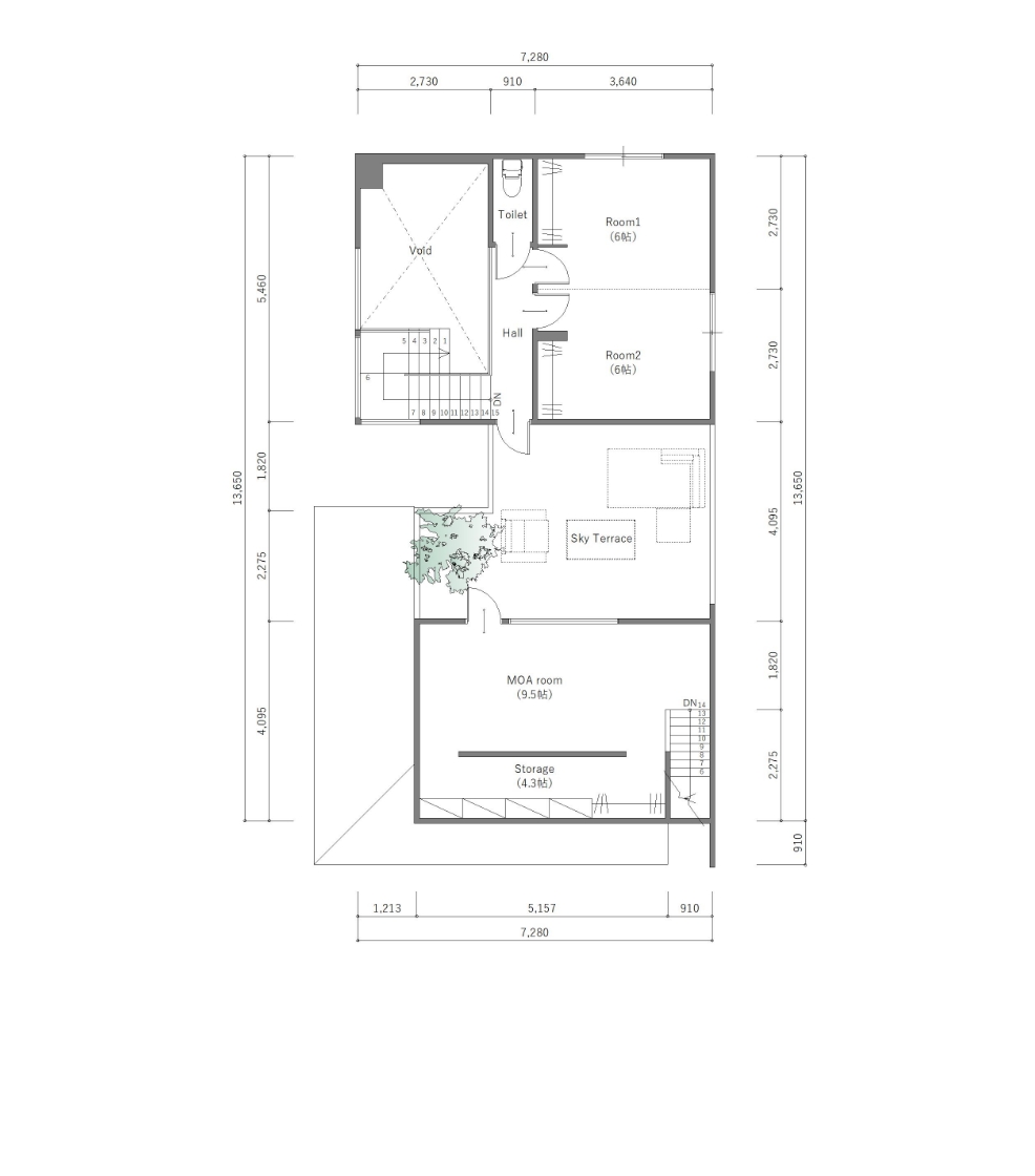
1F
2F
ギャラリー
街並みのアクセントになる外観
和洋のテイストがとけあったモダンな外観は、窓のバランスを調整し重心を低くデザインすることで重厚でまとまりのある立ち姿に。日中は軒を飾る木目が目を引き、夜はライトアップされた姿が印象的な住まいを演出します。
夜景
雰囲気の違う夜の景色。
玄関アプローチ
大きく屋根のかかった玄関までのアプローチは植栽が並び、通る人々を出迎えます。 季節感を感じる癒しの空間です。
リビングには光と緑をたっぷりと
ライン照明に導かれるようにダイニングからリビングへ。高さ2mを超す大窓を2面に配置した吹き抜けがもたらすのは、圧倒的な明るさと空へと視線がのびる解放感。ピクチャーウインドウからも緑を感じられる贅沢な空間です。
上質素材で空間に高級感をプラス
手に触れるものはなるべく天然素材で造作。アプローチのコンクリート壁にリーフ柄を刻印するなど、細部にまで心を満たす工夫が施されており、住むほどにわが家への愛着が増していきます。
キッチン
高級感のあるグレー×ブラック色のLIXILキッチンを採用。
「準平屋」の住まい
1階に寝室を取ることで日々の暮らしやすさが変わります。 ただとるのではなく、LDKとの距離感や水廻りの近さなど、後々のことや生活感も考えながら間取りをご提案します。
暮らしに楽しみを増やす“第3の場所”
主寝室から内階段で直接アクセスできる「MOAroom」には、ファミリークローゼットを設えました。ゲスト用のベッドルームや子ども部屋など、アイデア次第で用途が広がります。
非日常を日常にする「スカイテラス」
ただそこに身を置くだけで、リゾートのようなくつろぎを感じられる「スカイテラス」。 BBQやプールを楽しむプライベート空間として、あるいはおもてなしスペースとして、目的を限らない自由さが生活に潤いをもたらします。
景色の変わる夜のバルコニー
坪庭を愛でる書斎コーナー
LDK空間にある書斎コーナーは坪庭を眺められるスペースに。 庭木の揺らぎや日の光を感じながらゆったりとした時間を過ごせます。
スタッフボイス
住む人の数だけある 家への夢や希望をかたちに
インターネットやSNSなどで、さまざまな情報が瞬時に手に入るようになりました。住まいに関しても新しい商品や工法、トレンドが次々と生まれ、お客様のご要望も多様化しています。「MOA nonoichi」は、住む人の「もっと」に対して、アイワホームがハウスメーカーとしてできる「もっと」を追求して生まれた新たな価値。街中にありながら緑や空、光、風など自然を感じてほっと落ち着ける家。何年たっても帰りたくなる家。そして、ライフステージが変化しても、毎日をより快適に人生をさらに豊かにする家。それが、「MOA nonoichi」です。
物件情報
構造
2階建て
間取り
4LDK+MOAルーム
延床面積
42.37坪
敷地面積
58.7坪
坪単価
80万円~90万円
工法
木造軸組
施工期間
2024年9月完成
