ニューハウス|木にこだわる家づくり
高性能×1.5階建て見学会|20年後の資産価値を保証する家
石川県野々市市
イベント情報
期間
2026/02/01 〜 2026/02/28
時間
10:00〜17:00
場所
石川県野々市市御経塚2丁目110
駐車場
有
2025.
8
月
見学時間を選んでください
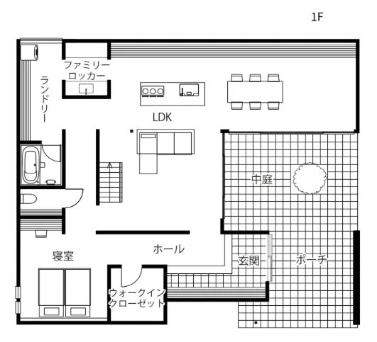
家族それぞれの収納ファミリーロッカー
洗濯してハンガーで乾かすものは畳まずに家族それぞれのロッカーに。子どもは自分の収納として整理整頓や自分で2階に持っていく習慣付けにも。
家族のコミュニケーションを生み出す吹き抜け
1階のリビングと2階の子ども部屋空間は吹き抜けでつながっている。別々の空間にいても家族の気配を身近に感じながら、自然に生まれるコミュニケーションが楽しめる。
木と石など自然素材の質感が日々の暮らしに贅沢をプラス
内装の随所に風合いのある木と石の素材を取り入れ、ワンランク上の上質な空間を演出。中庭から降り注ぐ明るい光を受けて自然の癒しを感じることができる。
家の顔として客人を迎えるシンプルで美しい玄関
訪れる人をもてなす玄関は、土壁と木を基調とした広々とした空間。格子組を使って光をやさしく包み込み、和ならではの情緒あふれる独特の風情を醸し出す。
のびやかで開放感あふれる玄関と中庭をつなぐポーチ
モノトーンをベースに木目を取り入れ、洗練された雰囲気に。中庭へとつながるのびやかな空間が自然との一体感を感じさせる。大きな天井が雨や日差しを遮り、趣味や遊びにも使える。
外を生活の場として利用できる中庭
リビングから出入りできる中庭は、手前のポーチまでひろがり、居住空間と一体になっている。開口部を広くとって、屋外と屋内をつなげているので開放感が抜群。
イベント情報
期間
2026/02/01 〜 2026/02/28
時間
10:00〜17:00
場所
石川県野々市市御経塚2丁目110
駐車場
有
閲覧履歴
